Kiwi Precast Homes
Kiwi Precast Homes bring modern, energy-efficient design to California and across North America using durable precast concrete. Built to resist fire, storms, and floods, these homes are low-maintenance, long-lasting, and faster to build than traditional homes—available in both custom and pre-designed options.
Stronger. Smarter. Built to Last.
Standard Models
Advanced manufacturing for fire proof homes
Kiwi Newton is currently working on several predesigned models for our Kiwi Precast Homes. We are not currently pursuing custom home projects, however our available models have some customization options.
Starting at $680,000
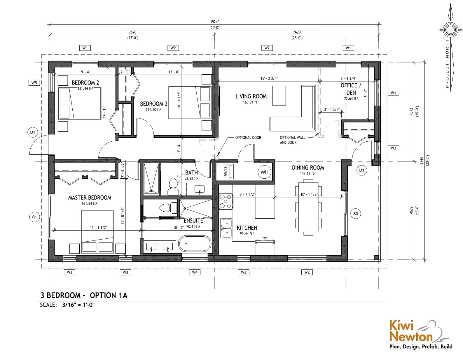
The Kiwi 1500 is a 3-bedroom, 2-bath single-storey home built for durability, comfort, and efficiency. At roughly 1,500 square feet, it features open-plan living, abundant natural light, and durable non-combustible concrete panels with integrated insulation. Designed to exceed energy standards and built to last over 100 years, the Kiwi 1500 offers peace of mind for you and your family.
The design will have slight variations depending on the location to meet all local building codes.
Coming Soon!
Coming Soon!
Full Package
Modern Package
Modern Plus Package
Provided By Kiwi Newton
Coordinated By Kiwi Newton
Assumptions
Benefits
Leverage standard components to create flexible and unique homes.
Kiwi Precast Homes deliver more than just modern aesthetics—they’re built for performance, comfort, and resilience. From energy savings to disaster resistance, every feature is designed to enhance long-term value while simplifying construction. Here’s what sets our homes apart:

Built to endure fire, floods, hurricanes, and tornadoes, our precast homes offer superior durability with minimal maintenance. Buildings can last for 100+ years.

Kiwi Precast Homes are built to near Passive House standards and can be made Net-Zero with the addition of Solar Panels.

Superior insulation and airtight construction minimize heat loss, keeping your home comfortable year-round while lowering energy costs.

Mold-resistant, bug-proof, and weatherproof concrete ensures a hassle-free home that stays strong and beautiful for decades.

Precision-engineered precast components allow for rapid on-site assembly, reducing build times, waste, and labour costs.

Solid concrete walls resist moisture, reduce allergens, and prevent mold growth—creating a healthier, more comfortable home.

Low running costs and less maintenance compared to conventionally constructed homes.

Choose a fully custom home or streamline construction with pre-designed, high-performance homes for faster approvals and cost savings.

Dense concrete walls provide superior soundproofing, creating a quieter, more peaceful home—ideal for multi-unit and urban living.
Placeholder for calc
Kiwi Newton
Experience
Kiwi Newton has been a General Contractor since 1994. With an extensive portfolio of projects, Kiwi Newton has experience solving the many different challenges that can occur during a project.
Kiwi Newton has production facilities for steel fabrication and precast concrete manufacturing allowing for vertical integration of supply chain and better project control.
est. 1994

Prestressed Floor Slabs Above
Exterior Wall
Building envelope and structure
Structural Corridor Wall
Corridor Wall
Exterior Wall
Building envelope and structure
Prestressed Floor Slabs
In-floor heating and cooling lines embedded

Panelized precast
the next step in ‘total precast’ construction
Kiwi Precast Homes use a panelized precast concrete approach that is very similar to the Kiwi Precast System, which is used for multi-unit residential construction.
Our Design-Build approach to construction seamlessly integrates planning, design, prefabrication, construction, and commissioning into a single streamlined process.
This methodology ensures clear communication, cost certainty, and timely project completion. By acting as the sole point of responsibility, we eliminate the inefficiencies and risks associated with traditional construction methods. Our innovative use of advanced technologies and sustainable practices allows us to deliver high-quality, energy-efficient homes tailored to our clients’ unique needs.
At every stage, Kiwi Newton prioritizes collaboration, excellence, and client satisfaction to create residential spaces that truly stand out.
We ask the right questions to deliver the desired end results.
Our client-centric approach allows us to deeply understand the unique needs and goals of each residential project. This understanding is the cornerstone of our value engineering process, enabling us to tailor solutions that optimize every aspect of the building.
By involving stakeholders at every stage, we ensure that our designs align perfectly with client objectives and operational requirements.
This collaborative effort allows us to enhance efficiency, functionality, and performance, ultimately delivering residential buildings that provide the best possible return on investment while meeting the highest standards of quality and sustainability.
Our approach is an “Integrated Design & Delivery” solution.
Other modular solutions are trying to solve one problem in an interconnected web of inefficiencies. We are addressing the whole equation; a single-source solution for planning, developing, designing, building and maintaining.
Combining our modular solutions with the other divisions of our company, we can design the building, manufacture the modular components, prepare the siteworks, install the building, finish it, and get it ready for occupancy.
When construction companies vertically integrate themselves like this, they can solve inefficiencies and drive down cost throughout the whole process.
From Design to Occupancy.
Our approach considers that affordability, especially housing affordability, is not just about the upfront capital cost of building the project.
Affordability must be maintained long-term. Otherwise, cheap buildings will be constructed, and the burden of cost will be pushed into the future in the form of costly repairs, updates and expensive ongoing operations costs (electricity, gas, maintenance, etc.).
Kiwi Newton designs and builds projects that have an attractive construction cost, but also have low operating costs due to superior energy efficiency, passive designs, and reducing loads on mechanical equipment.
Most buildings constructed in the last 50 years were not concerned with energy efficiency, leading to excessive greenhouse gas emissions and a burdened electrical grid. While there is a push towards net-zero buildings, it often comes with higher construction costs.
However, the buildings that Kiwi Newton constructs are inherently energy efficient with no added cost. Our Net-Zero Ready buildings can be built for less than the average cost per square foot using the Kiwi Newton approach, offering a sustainable solution that is both environmentally friendly and cost-effective.
Kiwi Newton uses innovative solutions for residential building projects by implementing modular and prefabricated construction methods, enhancing efficiency and precision. We utilize advanced technologies like Building Information Modeling (BIM) for accurate planning and augmented reality for design visualization. Additionally, we adopt carbon-reducing techniques to minimize environmental impact, ensuring our buildings are state-of-the-art and sustainable.
more than modular
it's a methodology
While the modular panels are an important part of our solution, it is only one part. In order to truly increase construction productivity, the whole delivery process must be integrated.
Our solution is an “Integrated Design & Delivery” approach. Other modular solutions are trying to solve one problem in a whole interconnected web of inefficiencies. We are addressing the whole equation; a single-source solution for planning, developing, designing, building and maintaining.
Use Cases in California:
Prefabrication
the future is prefabricated
Kiwi Newton uses advanced prefabricated and modular construction methods designed for superior efficiency, sustainability, and passive energy performance.
Our Kiwi Precast Homes feature concrete panels with continuous exterior insulation, ensuring that the concrete’s thermal mass effectively regulates indoor temperatures, passively keeping spaces warmer in the winter and cooler in the summer.
The inclusion of passive in-floor heating and cooling systems further enhances comfort, utilizing the building’s thermal mass for consistent and efficient temperature regulation. Panels are connected to ensure exceptional airtightness, which passively improves overall energy performance.
Kiwi Newton’s dedicated solar division offers comprehensive photovoltaic solutions, making solar energy a great add-on to any project.
By integrating advanced solar technology, we enhance sustainability, reduce operational costs, and increase energy efficiency, providing significant value and environmental benefits.
Build better
the future is passive & prefabricated
Our Kiwi Precast Homes are designed to align with Passive House standards, focusing on energy efficiency and sustainability. With superior external insulation, airtight construction, thermal mass activation, and lack of thermal bridging, the system helps maintain consistent indoor temperatures, reducing energy use for heating and cooling.
In addition, the system supports LEED certification by contributing to energy efficiency, reduced environmental impact, and improved indoor air quality. This approach ensures that buildings meet high-performance energy goals while remaining comfortable and cost-efficient to operate.
Think like an automotive company
D.f.M.A.
Taking inspiration from the automotive industry, Kiwi Newton follows a similar approach by bringing the entire team in-house.
Automotive manufacturers have adopted a strategy of vertical integration, allowing their teams to work closely with one another to manage design, engineering, manufacturing, and delivery, thus ensuring optimal efficiency in both cost and functionality.
This methodology is called Design for Manufacturing and Assembly (DfMA).
DfMA is a product design methodology which considers manufacturing parameters and assembly procedures during the design stage to reduce total time and cost of delivering the product.
What is the Kiwi Precast System?
The Kiwi Precast System is a modular building solution that uses prefabricated concrete panels for walls, floors, stairs, and other structural components, ensuring durability, energy efficiency, and reduced construction time.
What sets Kiwi Precast apart from other construction methods?
Kiwi Precast builds better, more cost-effective buildings, particularly for structures between 6 and 30 storeys. Our energy-efficient, sustainable, and net-zero ready buildings offer superior comfort and durability at a lower cost per square foot than traditional methods. What sets us apart is our fully integrated project delivery model. Unlike other construction methods, which rely on separate teams and silos, we manage the entire process—design, manufacturing, and assembly—ensuring all components work cohesively.
Using Design for Manufacturing and Assembly (DfMA), we streamline the building process from the start, reducing time and cost. Unlike other modular companies that can only handle specific types of buildings, our panelized components work for a wide range of projects, making our approach more versatile and efficient.
How is the Kiwi Precast System different from traditional precast construction?
The Kiwi Precast System goes beyond traditional precast construction by integrating multiple systems—such as insulation, heating/cooling, electrical, plumbing, and fire suppression—into each panel. This reduces the need for additional on-site work and speeds up construction. Additionally, our approach focuses on energy efficiency, including thermal breaks and airtightness, which are not typically features of standard precast. Unlike normal precast methods, the Kiwi Precast System is part of a fully integrated design and delivery model, ensuring a seamless construction process from start to finish.
What types of buildings can be constructed with the Kiwi Precast System?
The system is versatile and can be used for multi-unit residential, commercial, office, industrial, educational, healthcare buildings and more, typically ranging from 6 to 30 storeys.
Can the exterior of a Kiwi Precast building be customized?
Yes, the system allows for a wide range of exterior cladding options, so your building doesn’t need to look like traditional precast concrete. Cladding can be applied on-site or in the factory, and is easily replaceable.
What are the benefits of using precast concrete components?
Precast concrete is fire-resistant, mold-resistant, and durable. The Kiwi Precast System also integrates multiple construction elements—like insulation, plumbing, and electrical systems—into each component, streamlining the building process.
How does the Kiwi Precast System align with Passive House standards?
The Kiwi Precast System meets Passive House standards by incorporating high-performance insulation, airtight construction, and minimal thermal bridging. These features help maintain consistent indoor temperatures and reduce the need for heating and cooling, ensuring energy-efficient and comfortable buildings.
Can the Kiwi Precast System be used for Net-Zero construction?
Yes, the Kiwi Precast System is ideal for Net-Zero construction. Its thermal mass, airtight design, and integration of energy-efficient systems like heating, cooling, and insulation help reduce energy consumption, supporting Net-Zero energy goals and minimizing greenhouse gas emissions.
Does Kiwi sell the Kiwi Precast components to other general contractors?
No, Kiwi does not sell its precast components to other contractors. As a vertically integrated design-builder, Kiwi handles the entire process—from design and manufacturing to construction—ensuring quality control and efficiency throughout the project. This approach allows Kiwi to deliver a seamless solution tailored to each client’s needs.
What is the process for starting a project with Kiwi Newton?
The process typically involves:
For more detailed information or specific inquiries, please contact Kiwi Newton directly.
Connect with Us
Phone: 519-822-5281
Fax: 519-822-6159
Email: Email
Phone: 519-822-5281
Fax: 519-822-6159
Email: marketing@kiwinewton.com
Phone: 519-822-5281
Fax: 519-822-6159
Email: marketing@kiwinewton.com
Email: estimating@kiwinewton.com
Email: estimating@kiwinewton.com
Email: estimating@kiwinewton.com